15.01.2018
Код несправності P0825 – відмова логіки важеля селектора.
Зазвичай супроводжується автоматичним переходом на автоматичний режим перемикання з ручного. На дисплеї з'являється символ "A" на Chery Tiggo FL і символом "AUTO" на Chery Kimo AMT і Chery Beat AMT. Тобто, якщо важіль селектора не повертається у стійке положення протягом певного часу (приблизно 72 секунди), то причиною стане помилка коробки передач робот DTC P0825. Це свідчить про неправильну роботу важеля селектора. Якщо виникає вказана вище помилка, AMT (автоматизована механічна трансмісія) буде переведена в автоматичний режим. Система постійно скеровуватиме КПП (коробка перемикання передач) до 1-ї передачі. В цьому випадку:
- Запитайте у водія, чи постійно був нестійким важіль селектора при наборі та зниженні передачі .
- Перевірте стан джгута проводів між блоком TCU (блок керування коробкою робот) та ричагом селектора.
- Від'єднайте роз'єм для перевірки справності. Переконайтеся, що не погнут і не випав контакт.
- Розберіть сам селектор, проведіть огляд щодо пошкоджень, корозії чи окислення доріжок на платі.

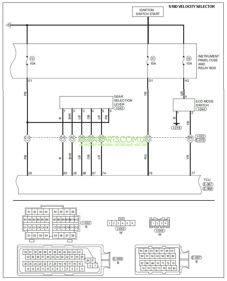
Принципова електрична схема з'єднання важеля селектора з блоком TCU автомобіля Chery Beat AMT.

Принципова електрична схема з'єднання важеля селектора з блоком TCU автомобиля Chery Tiggo FL AMT.

У разі відсутності похибки, але трохи схожості симптому (система AMT в автоматичному режимі скеровує авто до нижчої передачі, навіть при натисканні педалі акселератора), слід провести огляд датчика педалі гальм. А саме в місці його кріплення. Відсутність правильної фіксації призводитиме до спотворення сигналу, який надходить до TCU, а нерозуміння ситуації змушуватиме водія перейти на "ручний" режим. Не слід плутати з електричною поломкою датчика стоп-сигналу. У цьому випадку, якщо ключ запалення залишається в положенні "старт" більше 10 секунд, TCU повідомить про це водія після запуска двигуна, за допомогою попереджувального індикатора на панелі приладів. Слід враховувати певні ньюанси "ручного" режиму КПП у випадку, коли водій перемикає передачі занадто швидко певний час:
Якщо Ви не впевнені у виборі чи сумніваєтеся, то наші фахівці безкоштовно проконсультують Вас з будь-яких питань, пов'язаних із нашими пропозиціями
Ви завжди можете поставити запитання по телефону:
0981104230
0981104230 Viber
Робочі дні 10:00-17:00
Вихідні дні 10:00-15:00
24.02.2022
Lancia. P1818 помилка AMT КПП17.01.2022
FIAT. P1769 похибка роботизованої КПП 500L13.01.2022
FIAT. Похибка P1772 роботизованої коробки перемикання передач19.05.2021
FIAT. Похибка P1767 та P1810 з P1818 коробки передач18.01.2021
FIAT. P2916 помилка роботизованої КПП07.10.2020
FIAT. Похибка P060C та P1818 роботизованої коробки передач23.09.2020
MG3. Помилка P0720 роботизованої коробки передач MG3 Cross13.09.2020
MG3. Помилка P2916 роботизованої коробки передач MG3 Cross.14.08.2020
MG3. Помилка P2912 роботизованої коробки передач MG3 Cross.08.08.2020
RENAULT. Ремонт циліндра зчеплення 7701070838 або 7701047595